Calle Alfredo Salazar, Lima - Perú. 2008

El proyecto se sitúa en el borde de un típico parque urbano de San Isidro.
El programa del concurso contemplaba el diseño de tres departamentos típicos y un Penthouse en dúplex. Sin embargo, debido a los parámetros urbanísticos que impedían usar la azotea, se optó por hacer una “casa en el parque”, semienterrada con respecto a la calle, obteniendo así 4 departamentos sobre la casa.
La casa en el parque posee un jardín propio, se desarrolla en dos niveles y posee una gran galería de arte en doble altura. Desde ella la vista se extiende a través del jardín hacia la copa de los árboles del parque, anulando la sensación de estar bajo el nivel de la calle.
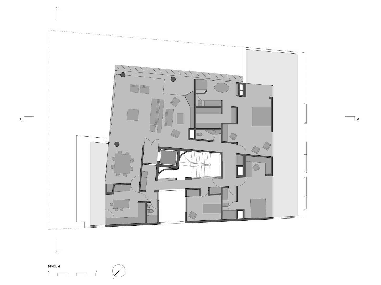
Los departamentos en un solo nivel concentran sus dormitorios hacia la calle, protegidos por ventanas puntuales aisladas, mientras que la zona social se abre al paisaje del parque. La posibilidad de circular en torno al núcleo de circulación vertical permite una gran libertad en el uso de los espacios, guardando una separación clara entre las áreas sociales, los dormitorios y el área de servicio.
La fachada hacia el pasaje de entrada al parque está equipada con parasoles de cristal templado serigrafiado, que permite a los departamentos protegerse del sol del poniente y de las vistas de los predios vecinos sin perder luz ni transparencia hacia el parque. Estos parasoles-celosías permiten a su vez una cierta libertad en la distribución de los departamentos y de las terrazas sin que esto afecte a la imagen de conjunto del edificio.
El programa del concurso contemplaba el diseño de tres departamentos típicos y un Penthouse en dúplex. Sin embargo, debido a los parámetros urbanísticos que impedían usar la azotea, se optó por hacer una “casa en el parque”, semienterrada con respecto a la calle, obteniendo así 4 departamentos sobre la casa.
La casa en el parque posee un jardín propio, se desarrolla en dos niveles y posee una gran galería de arte en doble altura. Desde ella la vista se extiende a través del jardín hacia la copa de los árboles del parque, anulando la sensación de estar bajo el nivel de la calle.
Los departamentos en un solo nivel concentran sus dormitorios hacia la calle, protegidos por ventanas puntuales aisladas, mientras que la zona social se abre al paisaje del parque. La posibilidad de circular en torno al núcleo de circulación vertical permite una gran libertad en el uso de los espacios, guardando una separación clara entre las áreas sociales, los dormitorios y el área de servicio.
La fachada hacia el pasaje de entrada al parque está equipada con parasoles de cristal templado serigrafiado, que permite a los departamentos protegerse del sol del poniente y de las vistas de los predios vecinos sin perder luz ni transparencia hacia el parque. Estos parasoles-celosías permiten a su vez una cierta libertad en la distribución de los departamentos y de las terrazas sin que esto afecte a la imagen de conjunto del edificio.



























No hay comentarios:
Publicar un comentario