Ciudad de Pucallpa, Dpto. de Ucayali, Perú. 2010-2011
Hostal 3 Estrellas – Una respuesta al caos, Ausencia
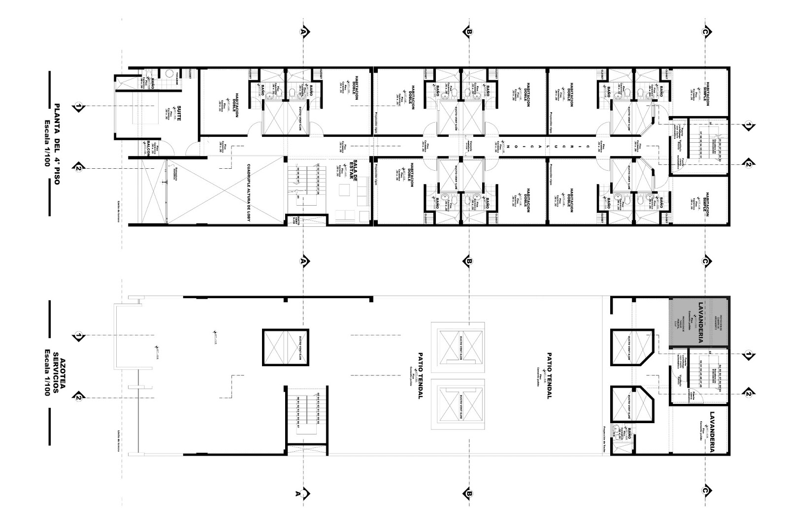
Este proyecto esta ubicado en una de las Avenidas más importantes de la ciudad de Pucallpa, lamentablemente como en muchas provincias donde todos tratan de ‘aprovechar’ al máximo cada M2, un perfil urbano y construcciones de baja calidad crean un caos volumétrico y una sensación de desorden.
Nuestra respuesta, proponer un elemento principal, la ausencia de volumen, este crea hacia el interior un espacio de cuádruple altura dándole calidad a la recepción del Hostal, y hacia el exterior una pausa al estresante perfil urbano de la calle, se mostraron algunos elementos estructurales para crear tensión hacia las edificaciones vecinas y así tratar de abrir el angosto terreno.









Muchas gracias Eugenio por tu comentario, es muy grato saber que el trabajo que realizamos sea del agrado de los lectores.
ResponderEliminar¡Saludos!